Мы привыкли видеть на небольшой площади современный стиль, минимализм или скандинавскую эстетику. Этот пример доказывает, что на самом деле в выборе стиля интерьера можно не оглядываться на количество квадратных метров.
Заказчик и задачи
Владелица этой квартиры в московском ЖК La Rue воплотила свою давнюю месту пожить в центре столицы в историческом здании. Новый комплекс апартаментов это модернизация доходного дома Г.П. Лазарика, построенного еще в XIX веке.
Среди пожеланий хозяйки этой небольшой квартиры была организация полноценной спальни и вместительных систем хранения. Для этого она обратилась к дизайнеру Ирине Лагода.

Перепланировка
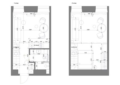
По документам апартаменты являются нежилым помещением, и тут не в полной мере действуют нормы перепланировок, которые актуальны для жилых квартир. Это открыло возможности для более смелой перепланировки. Также на организацию пространства повлияли высокие потолки 4,2 метра. Такие исходные данные позволили сделать второй уровень антресоль, где расположилась спальня. Под ней санузел и вместительная система хранения. На первом уровне уместили компактную кухню и гостиную-столовую.

Отделка
Для отделки стен выбрали краску в светлом бежевом оттенке. Дополнили настенное покрытие тонкими молдингами и состаренными зеркалами, заключенными в рамы из молдингов. Получилось не только визуально увеличить пространство таким образом, но и добавить интерьеру шика и парадности.

Высокие потолочные карнизы и плинтусы служат той же идее. На полу в кухне-гостиной и на втором уровне уложили инженерную доску «елочкой» классический рисунок для выбранной стилистики интерьера. Узкий коридор оформлен шестиугольной плиткой двух цветов, выложенных таким образом, что рисунок напоминает метлахскую плитку еще одна отсылка к историческому контексту интерьера.

В ванной комнате использовали керамогранит под мрамор на стенах, а пол выложили той же коллекцией плитки, что и в коридоре, но в другом цвете. Состаренное зеркало появляется и здесь над раковиной. Часть зеркала заключили в раму, большая отражающая поверхность помогает сделать маленькую ванную в два раза больше.

Мебель и системы хранения
Компактную кухню оснастили по максимуму: есть варочная панель на две конфорки, встроенный духовой шкаф и посудомоечная машина. Верхние шкафы предназначены для хранения посуды и других кухонных принадлежностей.

При входе справа встроили шкаф с зеркальными фасадами в обрамлении молдингов. Эта система хранения совершенно незаметна.

Под лестницей еще одна вместительная система хранения, куда также встроили холодильник и стиральную машину. В зоне спальни два вместительных шкафа для повседневных вещей.

Для мелких вещей в зоне спальни предусмотрели комод, для красивой посуды и книг буфет в зоне гостиной. В ванной комнате вместительная тумба под раковину.
Освещение
Общее освещение решено точечными светильниками, в кухне-гостиной разместили на потолке массивную люстру со стеклянными подвесками. На стенах бра с плафонами в виде свечей. В спальне в качестве дополнительного освещения использовали прикроватные ридеры, также бра предусмотрели в ванной на зеркале у раковины. Торшеры возле дивана помогают создать уютную обстановку вечером.


Ирина Лагода Дизайнер, автор проекта
Интерьер получился легким, воздушным, современным, очень комфортным для жизни. Отражает настроение и энергию владелицы апартаментов с изысканным вкусом. Картину «Лотос» художника Игоря Майкова выбирали совместно с заказчицей, она добавляет атмосферы легкости и магии.

Коридор

Гостиная

Кухня

Кухня

Кухня

Кухня

Коридор-прихожая

Коридор-прихожая

Лестница

Спальня

Спальня

Спальня

Санузел

Санузел Редакция предупреждает, что в соответствии с Жилищным кодексом РФ требуется согласование проводимых переустройств и перепланировок.




























