Дизайнер использовала необычные цветовые сочетания на кухне, в прихожей и ванной комнате. Гостиная-спальня же получилась в более спокойных оттенках, чтобы было проще настроиться на отдых.
Заказчики и задачи
Владельцы этой небольшой квартиры в Подмосковье семейная пара, оба работают в IT-сфере, иногда удаленно. К дизайнеру Александре Качуриной у них была просьба оформить недорогой, но комфортный и функциональный интерьер: с рабочим местом, вместительными системами хранения, обязательно с ванной, а не душевой, а также визуально расширить небольшое пространство.

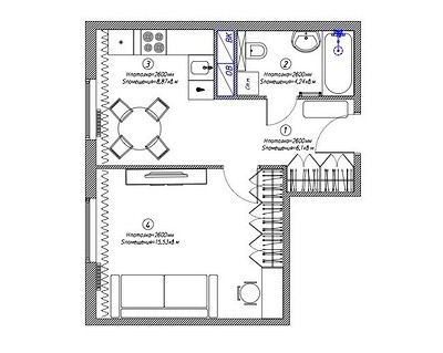
Перепланировка
Глобальная перепланировка не требовалась владельцы хотели иметь отдельную комнату, которая днем выполняла бы функции гостиной, а ночью спальни. Поэтому остановились на раскладном диване в качестве спального места. Чтобы в прихожей был естественный свет, убрали перегородку между кухней и входной зоной. Застройщик предусмотрел раздельный санузел, но его объединили по желанию хозяев.

Отделка
Стены покрасили во всех зонах, на полу в комнате, на кухне, даже в прихожей уложили ламинат. В ванной комнате скомбинировали несколько материалов. На полу и в зоне ванны плитка, в которую хозяйка квартиры влюбилась при просмотре вариантов в магазине. Под нее подобрали фоновую плитку зеленого оттенка и краску, которой отделали стены, куда не будет попадать вода.

Решение дизайнера для визуального расширения пространства со стороны отделки плинтусы, которые окрашивали в цвет стен. По словам автора проекта, это не «режет пространство». Двери в санузел и комнату скрытого монтажа, они тоже окрашены в цвет стен в этих зонах. Кроме того, единый материал пола по всей квартире, исключая санузел, тоже способствует визуальному увеличению пространство не дробится на маленькие участки.

Мебель и системы хранения
В проекте предусмотрели встроенные шкафы в комнате и в прихожей. В прихожей он подвесной, внизу оставили место под уличную обувь. Шкаф предусмотрен для верхней одежды, гладильной доски, швабры и ведра.

В комнате для повседневной и сезонной одежды.

Обе системы хранения сделали на заказ. Кухня также индивидуального изготовления. Сделали угловой гарнитур со встроенной техникой, включая холодильник, духовой шкаф, посудомоечную машину. Последняя небольшого размера на 45 см, большую вписать не получилось из-за ограниченного пространства. Благодаря шкафам до потолка мест для хранения достаточно.

В ванной комнате систему хранения тоже выполнили на заказ. Она занимает всю стену. В нишу шкафа встроена стиральная машина. Инсталляция унитаза также размещена по этой стене. В шкафу запланировано место под хранение постельного белья, полотенец, моющих средств.
Освещение
Общее освещение решено встроенными точечными светильниками. Дополнительные сценарии различаются в зависимости от комнаты. Так, в гостиной-спальне потолочная люстра, торшер у дивана.

На кухне люстра над обеденным столом и подсветка кухни. В прихожей автор проекта запланировала подсветку ниши для обуви под шкафом. Она включается под датчику достаточно поднести ногу. В ванной комнате в качестве дополнительного освещения предусмотрена подсветка зеркала и полки над стиральной машины.

Александра Качурина Дизайнер, автор проекта
Заказчики ценят простоту и цвет в интерьере. В холле самый яркий цвет, оранжевый. Я хотела, чтобы люди при входе в эту квартиру сразу понимали, что хозяева квартиры яркие и открытые. Кухня является продолжением холла, поэтому в компанию к цвету охры в коридоре и оранжевого фартука были предложены зеленые фасады гарнитура. Гостиная многофункциональное помещение, она и спальня, и рабочий кабинет. Поэтому здесь был использован более спокойный и благородный розово-коричневый цвет. Бюджет для декора был невысокий, поэтому большая часть заказана на сайте Wildberries. Там всегда можно найти красивый и бюджетный декор, а при грамотном подборе, которым занимался декоратор, он будет выглядеть дорого и стильно.

Комната

Комната

Комната

Комната

Комната

Комната

Кухня

Кухня

Кухня

Прихожая

Ванная комната

Ванная комната Редакция предупреждает, что в соответствии с Жилищным кодексом РФ требуется согласование проводимых переустройств и перепланировок.




























